Lieu : Bromont, Québec.
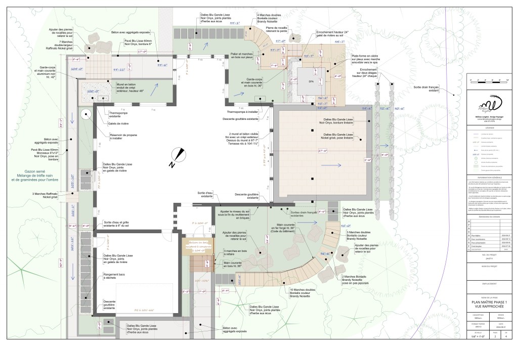
L’objectif était de concevoir et d’adapter l’aménagement paysager de la résidence familiale construite dans les années 70, située sur un terrain en pente et ponctuée de végétation mature. Les propriétaires souhaitaient créer un espace extérieur convivial, en cohérence avec les rénovations du bâtiment, tout en conservant l’intimité et le côté naturel du site. Ce projet a été conçu pour accueillir leurs enfants et petits-enfants, transformant la résidence en un lieu de rassemblement familial.
Un espace de rencontre
L’aménagement extérieur a été conçu en harmonie avec les espaces réaménagés par l’architecte. Une vaste zone pavée, partiellement couverte par la terrasse à l’étage, sert désormais de lieu central pour les rassemblements. Cet espace a été conçu pour accueillir famille et amis lors de moments conviviaux. L’espace spa a été installé à un endroit stratégique offrant de l’intimité tout en restant à proximité de la zone pavée. De plus, le foyer extérieur apporte confort et détente à l’ensemble de l’aménagement.
Préserver la nature et repenser les accès
Le terrain présente plusieurs arbres matures qui ont été conservés afin de maintenir le caractère naturel de l’espace. L’aménagement a été réfléchi pour s’adapter à la pente, intégrant des zones pavées, des plantations à entretien léger, ainsi que des escaliers facilitant les déplacements autour du bâtiment. Une nouvelle zone de circulation a été planifiée pour y donner accès à la nouvelle entrée a été ajoutée à l’arrière lors des rénovations.
Harmonie entre l’ancien et le nouveau
Pour préserver le lien avec l’histoire de la résidence, une partie du pavé existant a été réutilisée, rappelant l’authenticité du lieu. Ce choix s’intègre aux nouveaux matériaux modernes sélectionnés pour l’aménagement, garantissant ainsi une continuité esthétique avec le bâtiment rénové tout en assurant la durabilité des espaces extérieurs.
Transformation
Grâce à une conception réfléchie et respectueuse des lieux, ce projet a transformé la résidence en un espace fonctionnel et accueillant pour les générations futures, où nature et confort coexistent en harmonie.









